3 Bedroom Villa
- Eunice Abanewa Hanson
- Jan 19
- 2 min read
Overview
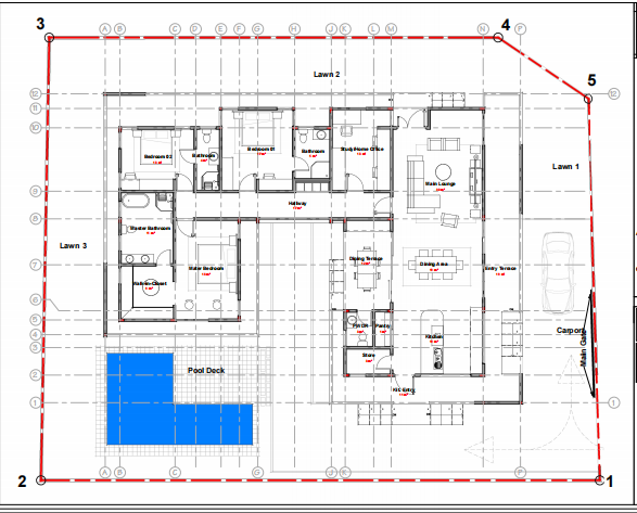
This architectural design project presents a modern 3-bedroom villa that blends contemporary elegance with functionality. Situated on a spacious compound, the villa features a harmonious interplay between indoor and outdoor spaces, offering residents a luxurious yet comfortable living experience.
The villa's design emphasizes open spaces, natural light, and a strong visual connection to the outdoors.
The villa's interior layout is designed for both privacy and social interaction. The entrance opens into a grand foyer, leading to an expansive open-plan living and dining area. Floor-to-ceiling windows allow natural light to flood the space, offering uninterrupted views of the pool and garden. The kitchen, adjacent to the dining area, is equipped with state-of-the-art appliances and features a large island that serves as a focal point for casual gatherings.
The landscape design complements the villa’s architecture, with carefully selected plants and trees that enhance privacy while adding to the aesthetic appeal. illuminating the villa and pool area at night, enhancing the ambiance.

The outdoor area is a key highlight of the design, featuring a stunning infinity-edge pool. The pool is framed by a spacious deck with comfortable lounge chairs and shaded areas for relaxation. Adjacent to the pool is an elegant sitting area, designed for outdoor dining and entertaining. This space is equipped with a built-in barbecue, a
dining table, and cozy seating arrangements, all sheltered under an umbrella that provides just the right amount of shade.
The villa includes three spacious bedrooms, each with its own en-suite bathroom. The master bedroom, located on the far side of the villa for added privacy, boasts a walk-in closet and a luxurious bathroom with a soaking tub and rain shower. The other two bedrooms are equally well-appointed, with large windows that provide views of the garden and pool area.
Comments