FINAL DESIGN FOR ARTIST STUDIO DESIGN
- Eunice Abanewa Hanson
- Jan 24, 2022
- 1 min read
Updated: Jan 17

Sustainability or eco-friendly architecture mainly focuses on building material and energy use as well as waste. These factors therefore influenced my final work for the 10 metre square Margate project. Below is a pdf file of the final piece that encompasses, aesthetics, functionality, sustainability and green space in the building design.
The main building materials used in the design were natural stone, glass, wood and solar roofing tiles.
Plants were also provided in the form of potted plants for both interior and exterior spaces.
The design also catered for the refuse area that is present at the site.
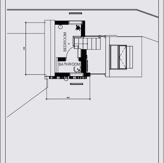
The floor plans below show the spatial allocations and functions of the spaces.






Comments